— PROJECT NAME

5125 Penn


— ROLE

Developer


— DATE

2011

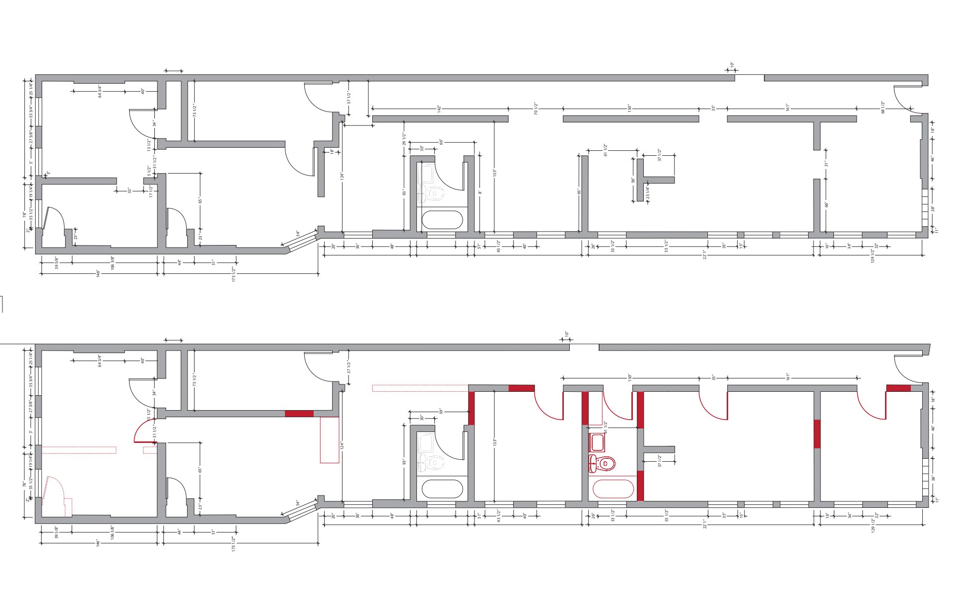
In 2011 I purchased a 3 story, mixed use building in Pittsburgh’s Garfield neighborhood. The building was the previous location for the Nonprofit Thomas Merton Center. The building contains ground floor retail/office space and 2 floors of apartments above.